Novi Sad - Telep

Izdavanje reprezentativnog višenamenskog lokala 330 m² na atraktivnoj lokaciji – Telep, Novi Sad

  • Broj prostorija: 0.0
  • Cena po m2: 8 €/m2
  • Površina: 330 m2
IZDAVANJE

2,700 €

Opis nekretnine

  • Šifra nekretnine : 4129
  • Površina : 330 m2
  • Cena : 2,700 €
  • Cena po m2 : 8.18 €/m2
  • Grad : Novi Sad
  • Lokacija : Telep
  • Broj prostorija : 0.0
  • Sprat: pr/0

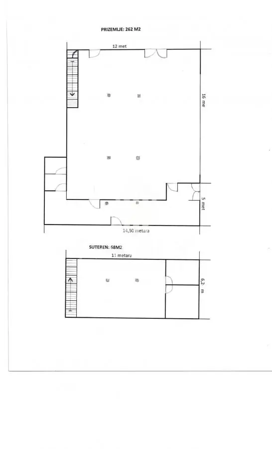
U ponudi je vrhunski višenamenski poslovni prostor ukupne površine 330 m², smešten na izuzetno frekventnoj i vidljivoj lokaciji u naselju Telep. Lokal se prostire na 262 m² prizemlja i 68 m² suterenskog prostora, što ga čini idealnim za različite delatnosti. Zahvaljujući dvostranoj orijentaciji i velikim aluminijumskim portalima, prostor je maksimalno osvetljen i izuzetno uočljiv, što predstavlja veliku prednost za poslovanje. Visina plafona od 3,8 m dodatno doprinosi osećaju prostranosti i funkcionalnosti. Lokal je kompletno uređen, klimatizovan i pokriven video nadzorom, kako u prodajnom, tako i u magacinskom delu. Poseduje zaseban ulaz u magacin sa zadnje i bočne strane, što omogućava efikasnu logistiku i snabdevanje. Pogodan je za širok spektar delatnosti: markete, maloprodajne objekte, restorane, ordinacije, kancelarije, call centre i druge poslovne namene. Dodatne pogodnosti uključuju veliki parking ispred objekta, kao i dva obezbeđena parking mesta u vlasništvu lokala. Prostor je opremljen internetom, telefonskom linijom i klimom. Cena zakupa iznosi 2.700 € mesečno, uz obavezan depozit u visini jedne kirije. Za više informacija pozvati: 063635443 Potreban depozit u visini zakupnine Agencijska provizija 100% od prve zakupnine jednokratno Family Nekretnine doo, upisan u REG POSREDNIKA 1708

SLIČNE NEKRETNINE

Novi Sad Detelinara

400 €

Izdaje se višenamenski lokal od 54 m² na atraktivnoj lokaciji – Nova Detelinara, Novi Sad. Lokal se nalazi u prometnom i odlično pozicioniranom …

  • Soba: 3.0
  • 7 €/m2
  • 54 m2

Novi Sad Centar

600 €

Novi Sad, u blizini Futoške pijace, uz Bulevar oslobođenja na vidljivom mestu. izdaje se odličan ulični lokal u prizemlju stambene zgrade. Pogodan…

  • Soba: 1.0
  • 21 €/m2
  • 28 m2

Novi Sad Podbara

400 €

Novi Sad,Podbara ,ulica Patrijarha Čarnojevića ,odličan lokal u suterenu površine 73m2 .Lokal se sastoji od tri pros…

  • Soba: 3.0
  • 5 €/m2
  • 73 m2

Novi Sad Telep

1,800 €

Luks poslovni prostor-ulični lokal…

  • Soba: 0.0
  • 9 €/m2
  • 205 m2

Sremska Kamenica Rakovac

2,600 €

Predtavljamo vam stambeno poslovni prostor u Rakovcu 979 m2 na placu od 1900m2 .Objekat je kompletno uknjižen i renoviran sa svim priključcima .Ob…

  • Soba: 0.5
  • 3 €/m2
  • 970 m2

Sremska Kamenica Tatarsko brdo

1,200 €

Odličan, renoviran poslovni prostor 190+36m2 ID#9668…

  • Soba: 0.0
  • 5 €/m2
  • 226 m2