Novi Sad - Adamovićevo naselje

Dvosoban stan na Adamovićevom naselju! ID#10670

  • Broj prostorija: 2.0
  • Cena po m2: 2,625 €/m2
  • Površina: 40 m2
PRODAJA

105,000 €

Opis nekretnine

  • Šifra nekretnine : 204010670
  • Površina : 40 m2
  • Cena : 105,000 €
  • Cena po m2 : 2625.00 €/m2
  • Grad : Novi Sad
  • Lokacija : Adamovićevo naselje
  • Broj soba : 2.0
  • Sprat: 5/0

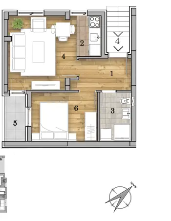
Stan na prodaju - Adamovićevo naselje, Novi Sad Agencija Gold nekretnine, predstavlja jednoiposoban stan na prodaju na Adamovićevom naselju, Novi Sad, udaljen svega 3 minuta hoda od Grbavice ali i od Bulevara Evrope. Stan se nalazi u novijoj, kvalitetnoj gradnji, na mirnoj lokaciji pogodnoj za porodični život. U neposrednoj blizini nalaze se škola, vrtić, marketi, park i gradski prevoz, što čini ovu nekretninu odličnom za porodice ili investiciju. Stan je uknjižen, ukupne kvadrature 45 m², dok grejna površina iznosi 40 m². Raspored prostorija i dimenzije: Donja etaža: - Hodnik: 1,70 × 1,90 m - Dnevna soba: 2,93 × 2,90 m - Kuhinja: 1,55 × 1,50 m (prirodna ventilacija) - Toalet: 1,22 × 2,16 - Stepenište: 2,95 × 1,00 - Terasa: 1,60 × 2,25 Gornja etaža: - Spavaća soba: 2,73 × 3,92 m - Kupatilo: 2,30× 1,78 - Hodnik: 1,28 × 3,20 Stan je svetao, funkcionalnog rasporeda i pruža mogućnost adaptacije prema željama budućeg vlasnika. Ova nekretnina predstavlja odličnu priliku za porodično stanovanje na Adamovićevom naselju ili kao investicija za izdavanje. Lokacija je mirna, ali i povezana sa svim ključnim delovima grada, što je čini vrlo atraktivnom za kupce. Za više informacija i zakazivanje razgledanja nepokretnosti kontaktirajte: +381668442233 Cena nepokretnosti je oglašena bez posredničke naknade. Posrednička naknada agencije Gold nekretnine iznosi 3% koja se računa na ukupnu konačnu ugovorenu kupoprodajnu cenu nepokretnosti. Za sve dodatne informacije kontaktirajte nasu kancelariju-Gold nekretnine Novi Sad. Vaš siguran partner u svetu nekretnina! Za više informacija pozovite 0668442233 Reg.posrednika br.1039

SLIČNE NEKRETNINE

Novi Sad Telep

97,400 €

Novi Sad, Telep. GARSONJERA - NOVO - USELJIVO DO KRAJA GODINE. Garsonjera se nalazi u novoj zgradi, useljivoj do kraja 2025.godine. Pozicionirana je n…

  • Soba: 0.5
  • 3,142 €/m2
  • 31 m2

Novi Sad Telep

99,819 €

PRODAJA Stan 1.5: NOVI SAD-Novi Sad-Telep, , 36.97m2, 99819 eur ID#11167…

  • Soba: 1.5
  • 2,698 €/m2
  • 37 m2

Novi Sad Sajmište

96,800 €

NOVI SAD.SAJAM .GARSONJERA.PLUS PDV(Svet nekretnine, Novi Sad, Reg. br. 405)…

  • Soba: 0.5
  • 3,227 €/m2
  • 30 m2

Novi Sad Avijacija

102,400 €

(Svet nekretnine, Novi Sad, Reg. br. 405)…

  • Soba: 1.5
  • 2,768 €/m2
  • 37 m2

Novi Sad Telep

109,350 €

NOVI SAD.TELEP.DVOSOBAN STAN.SA PDV-OM(Svet nekretnine, Novi Sad, Reg. br. 405)…

  • Soba: 2.0
  • 3,038 €/m2
  • 36 m2

Novi Sad Adice

107,050 €

Trosoban stan u urbanoj vili ukupne površine 54m2-Adice…

  • Soba: 3.0
  • 1,982 €/m2
  • 54 m2