Petrovaradin (Novi Sad) - Petrovaradin

Na prodaju četvorosban stan u novom urbanom naselju,Alibegovac 72m2

  • Broj prostorija: 4.0
  • Cena po m2: 2,163 €/m2
  • Površina: 72 m2
PRODAJA

155,700 €

Opis nekretnine

  • Šifra nekretnine : 2462
  • Površina : 72 m2
  • Cena : 155,700 €
  • Cena po m2 : 2162.50 €/m2
  • Grad : Petrovaradin (Novi Sad)
  • Lokacija : Petrovaradin
  • Broj soba : 4.0
  • Sprat: 1/2

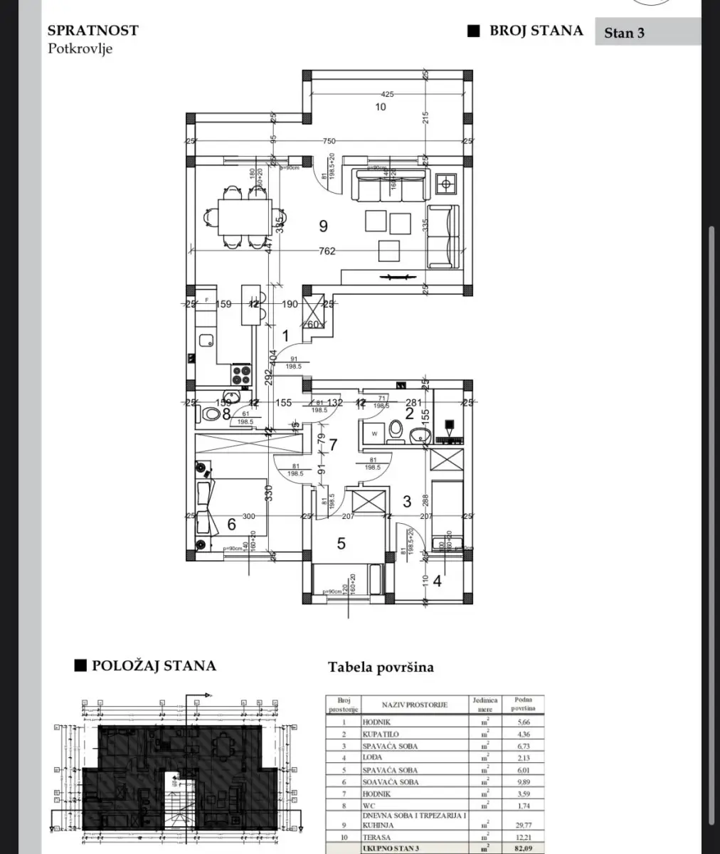
Prodaje se komforan i moderno koncipiran četvorosoban stan, smešten na jednoj od najlepših i najmirnijih lokacija u gradu – Alibegovac. Stan se nalazi na prvom spratu urbane vile sa svega dva sprata, u okviru zatvorenog i uređenog kompleksa sa ograđenim dvorištem koje pruža dodatnu privatnost i sigurnost. Ulaz u kompleks omogućen je kroz zasebnu kapiju sa daljinskim upravljanjem, a u dvorištu se nalaze privatna parking mesta. Parking mesto nije uključeno u cenu stana i iznosi 7.000€. Lokacija je idealna za porodičan život – okružena zelenilom i tišinom, a ipak nadomak svih gradskih sadržaja. Do centra Novi Sad stiže se za svega nekoliko minuta vožnje, dok je tržni centar Promenada Novi Sad udaljen oko tri minuta (preko mosta, bez gradske gužve). Stan se prostire na funkcionalno organizovanom prostoru koji čine prostran dnevni boravak sa otvorenom kuhinjom i trpezarijom, tri udobne spavaće sobe, kupatilo, poseban toalet i dve terase sa prelepim pogledom. Opremljen je podnim grejanjem na toplotnu pumpu, što obezbeđuje visok nivo komfora i energetsku efikasnost tokom cele godine. Svi priključci za internet i kablovsku televiziju su sprovedeni i spremni za korišćenje. CENA:155.700 evra sa uračunatom agencijskom provizijom Za više informacija pozvati: 063663254 Agencijska provizija 3% , uračunata u cenu Family Nekretnine doo, upisan u REG POSREDNIKA 1708 www. familynekretnine.rs

SLIČNE NEKRETNINE

Novi Sad Bulevar Evrope

149,550 €

NOVI SAD.BULEVAR EVROPE.DVOSOBAN STAN.PLUS PDV (Svet nekretnine, Novi Sad, Reg. br. 405)…

  • Soba: 2.0
  • 3,251 €/m2
  • 46 m2

Novi Sad Telep

161,500 €

NOVI SAD.TELEP.DVOIPOSOBAN STAN.SA PDV-OM (Svet nekretnine, Novi Sad, Reg. br. 405)…

  • Soba: 2.5
  • 2,648 €/m2
  • 61 m2

Novi Sad Bulevar patrijarha Pavla

156,700 €

NOVI SAD.BULEVAR PATRIJARHA PAVLA.DVOIPOSOBAN STAN.PLUS PDV((Svet nekretnine, Novi Sad, Reg. br. 405)…

  • Soba: 2.5
  • 2,612 €/m2
  • 60 m2

Novi Sad Salajka

149,350 €

Novi Sad - Salajka Na prodaju nesvakidašnja nekretnina na izuzetnoj lokaciji – Salajka, svega 10 minuta lagane šetnje do strogog centra Novog Sada…

  • Soba: 3.0
  • 2,531 €/m2
  • 59 m2

Novi Sad Sajmište

163,900 €

NOVI SAD.SAJAM .DVOSOBAN STAN.PLUS PDV(Svet nekretnine, Novi Sad, Reg. br. 405)…

  • Soba: 2.0
  • 3,642 €/m2
  • 45 m2

Sremska Kamenica Tatarsko brdo

164,450 €

Prodajemo luksuzne stanove u izgradnji na odličnoj lokaciji u Sremskoj Kamenici. Stanovi su projektovani po najsavremenijim standardima, a istovre…

  • Soba: 3.0
  • 2,835 €/m2
  • 58 m2