Petrovaradin (Novi Sad) - Bukovac

Novi Sad,Bukovac ,novogradnja,kuća na lepom mestu ,blizina izvora, postoji i garaža pored kuće od nekih 20m2.Kuća je

  • Broj prostorija: 4.0
  • Cena po m2: 1,256 €/m2
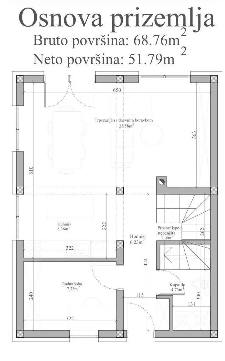
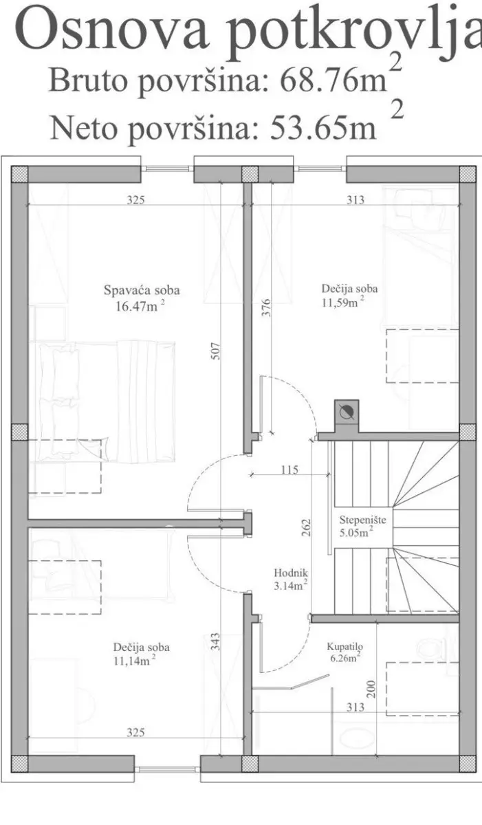
  • Površina: 105 m2
PRODAJA

131,840 €

Opis nekretnine

  • Šifra nekretnine : 3040576
  • Površina : 105 m2
  • Cena : 131,840 €
  • Cena po m2 : 1255.62 €/m2
  • Grad : Petrovaradin (Novi Sad)
  • Lokacija : Bukovac
  • Broj soba : 4.0
  • Površina placa: 530 m2

Novi Sad,Bukovac ,novogradnja,kuća na lepom mestu ,blizina izvora, postoji i garaža pored kuće od nekih 20m2.Kuća je rađena kvalitetnim materijalima ,nije završena tako da je možete dovršiti kako vama odgovara, postoji čak i ostatak materijala za dovršavanje iste. Kuća nije uknjižena, prodaje se u izgradnji, sve je rađeno legalno, ima građevinsku dozvolu, prijavu radova ali do upotrebne dozvole jos se nije stiglo. Nisu urađeni prikljičci za struju i vodu.

(Bomil nekretnine, Novi Sad, Reg. br. 251)

SLIČNE NEKRETNINE

Novi Sad Stepanovićevo

129,000 €

Porodična kuća-Stepanovićevo…

  • Soba: 4.0
  • 977 €/m2
  • 132 m2

Novi Sad Futog

123,600 €

Futog-Porodična kuća 136 m2 u blizini Dunava-065/385 8880…

  • Soba: 3.0
  • 909 €/m2
  • 136 m2

Novi Sad Veternk

123,600 €

Na prodaju moderna kuća u Veterniku – 54 m², kompletno nameštena!…

  • Soba: 2.0
  • 2,289 €/m2
  • 54 m2

Irig Irig

125,000 €

Prodajemo trosobnu vikend kuću površine 74m² u vikend zoni naselja Hopovo, na prostranom i ravnom placu od 2200m². Kuća je kvalitetno građena i …

  • Soba: 3.0
  • 1,689 €/m2
  • 74 m2

Inđija Čortanovci

134,000 €

Čortanovci – kuća na prodaju, 100 m od glavnog puta, idealna za odmor i život u prirodi Na prodaju je kuća površine 55 m² u Čortanovcima, sm…

  • Soba: 2.0
  • 2,436 €/m2
  • 55 m2

Inđija Čortanovci

123,600 €

Vikendica u Čortanovcima Agencija Moj Dom vam predstavlja odličnu vikendicu u Čortanovcima na prelepom mestu. Objekat je uknjižen i obuhvata povr…

  • Soba: 3.0
  • 1,648 €/m2
  • 75 m2