Sremska Kamenica - Tatarsko brdo

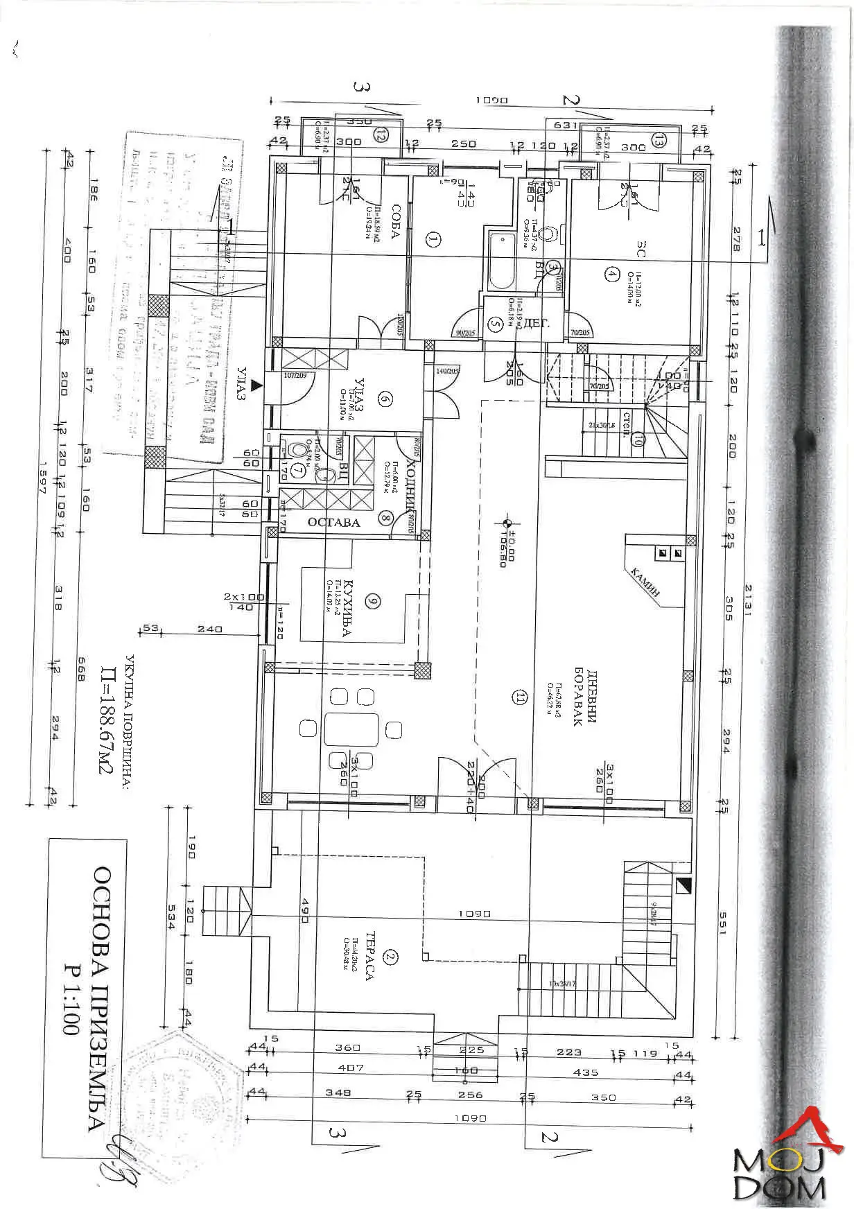
Кућа је постављена у смјеру исток-запад. Основа целе куће од подрума до крова је бетонско-армирани кавез који сва три нивоа веже у једну ц

  • Broj prostorija: 8.0
  • Cena po m2: 1,462 €/m2
  • Površina: 479 m2
PRODAJA

700,500 €

Opis nekretnine

  • Šifra nekretnine : 3002656
  • Površina : 479 m2
  • Cena : 700,500 €
  • Cena po m2 : 1462.42 €/m2
  • Grad : Sremska Kamenica
  • Lokacija : Tatarsko brdo
  • Broj soba : 8.0
  • Površina placa: 654 m2

Кућа је постављена у смјеру исток-запад. Основа целе куће од подрума до крова је бетонско-армирани кавез који сва три нивоа веже у једну целину изузетних статичких карактеристика. Столарија је 5-коморна немачка а сва су стакла пуњена аргоном. Цреп је аустријски. Испод црепа је даска па рефлектујућа фолија, па 20 цм стиропора, па фолија и ламперија+украсне греде око 20 цм дебљине.Лимарија је од бакра, спроведена у канализацију- Двориште је нивелисано и потпуно поравнато подзидом а бочне и задње стране, подзид је у задњем дијелу висине 420 цм, армирано бетонском конструкцијом ширине бетонског зида 30цм, са хоризонталним стопама дуж цијелог подзида. Погодан за бизнис и елитно становање, резиденцијалног типа: Мини хотел са велнесом и СПА Конгресни хотел мањег капацитета за предавања и курсеве до 50 људи.... Хотел за ловце са кухињом за обраду дивљачи, коморама за хлађење... Луксузни старачки дом за пензионере са сјевера Европе.... Za sve detaljnije informacije kontaktirajte nas: 063304062 (Moj Dom nekretnine, Novi Sad, Reg.br. 174)

SLIČNE NEKRETNINE

Sremska Kamenica Tatarsko brdo

700,500 €

Кућа је постављена у смјеру исток-запад. Основа целе куће од подрума до крова је бе…

  • Soba: 8.0
  • 1,462 €/m2
  • 479 m2

Petrovaradin (Novi Sad) Petrovaradin

699,000 €

Moderna pametna kuća sa bazenom u naselju Puckaroš!…

  • Soba: 6.0
  • 1,942 €/m2
  • 360 m2

Petrovaradin (Novi Sad) Petrovaradin

700,000 €

Prodaje se moderna kuća u Petrovaradinu – dom koji osvaja na prvi pogled! ID#10956…

  • Soba: 10.0
  • 3,256 €/m2
  • 215 m2

Luksuzna vila na Tatarskom brdu –

700,400 €

Luksuzna vila na Tatarskom brdu – savršen spoj elegancije, mira i potencijala…

  • Soba: 4.5
  • 4,049 €/m2
  • 173 m2

Novi Sad Centar

700,000 €

* Novi Sad - Centar *…

  • Soba: 4.0
  • 3,004 €/m2
  • 233 m2