Novi Sad - Telep

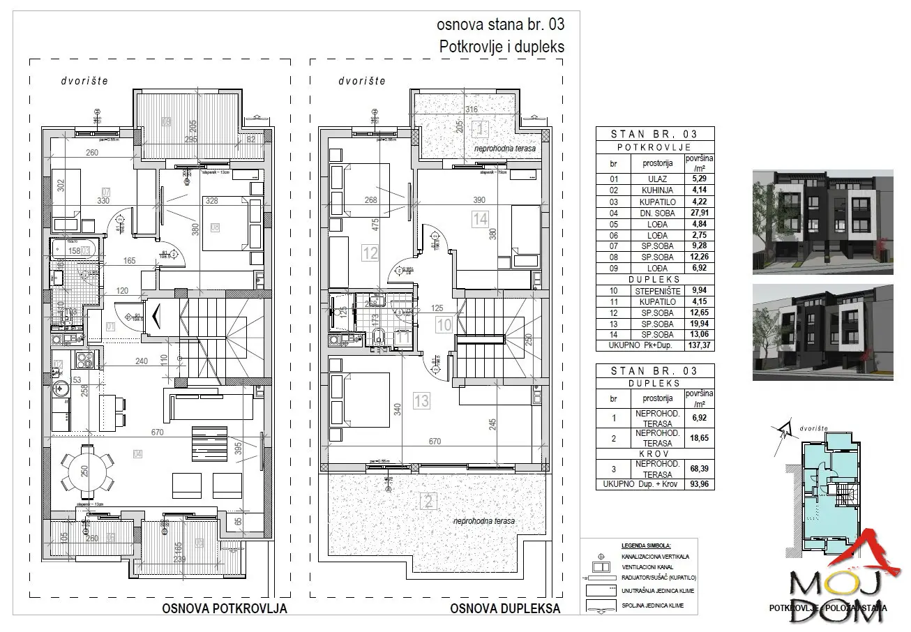
Prodajemo odmah useljiv šestosobni stan u urbanoj vili na Telepu. U ponudi su dva ekskluzivna stana površine 136 m² i 143 m² u mirnoj i elitnoj zoni Telepa, u urbanoj vili vrhunske gradnje. Svaki stan poseduje čak 90 m² krovnih teras

  • Broj prostorija: 6.0
  • Cena po m2: 2,575 €/m2
  • Površina: 136 m2
PRODAJA

350,200 €

Opis nekretnine

  • Šifra nekretnine : 1030677
  • Površina : 136 m2
  • Cena : 350,200 €
  • Cena po m2 : 2575.00 €/m2
  • Grad : Novi Sad
  • Lokacija : Telep
  • Broj soba : 6.0
  • Sprat: 2/3

Srpski: Prodajemo odmah useljiv šestosobni stan u urbanoj vili na Telepu. U ponudi su dva ekskluzivna stana površine 136 m² i 143 m² u mirnoj i elitnoj zoni Telepa, u urbanoj vili vrhunske gradnje. Svaki stan poseduje čak 90 m² krovnih terasa, koje dodatno obogaćuju životni prostor, ali ne ulaze u uknjiženu kvadraturu. Specifikacije i oprema: Podno grejanje na gas – svaki stan ima svoj Bosch kondenzacioni kotao Aluminijumski portali površine do 6 m², troslojno staklo, elektro aluminijumske roletne, komarnici na svim otvorima Vrhunska keramika Mirage i Keratile (formati 120×120 cm i 60×60 cm) Hrastov parket u sobama Sanitarije Hansgrohe i Villeroy & Boch, pametni tuševi Midea inverterski klima uređaj za svaki stan Klupice od prirodnog mermera na prozorima i terasama Sigurnosni sistem sa kamerama Video-interfon Mogućnost kupovine garaža i parking mesta. U cenu je uračunat PDV – kupac prvog stana oslobođen plaćanja poreza na prenos apsolutnih prava! Ne propustite priliku da živite u luksuznom i prostranom stanu u jednom od najtraženijih delova Novog Sada. Stanovi su uknjiženi 1/1 i bez tereta, moguće kreditiranje. Šifra: 1030677 Pozovite!!! 0638822439 Moj Dom nekretnine, Novi Sad (Reg. br. 174) English: For Sale: Move-in Ready Six-Room Apartment in an Urban Villa in Telep We are offering two exclusive apartments of 136 m² and 143 m², located in a peaceful and upscale area of Telep, in a top-quality urban villa. Each apartment comes with an impressive 90 m² of rooftop terraces, which significantly enhance the living space but are not included in the registered square footage. Specifications and features: Underfloor gas heating – each unit has its own Bosch condensing gas boiler Aluminum portals up to 6 m², triple-glazed windows, electric aluminum blinds, and mosquito nets on all openings Premium Mirage and Keratile ceramics (tile sizes: 120×120 cm and 60×60 cm) Oak parquet flooring in the rooms Hansgrohe and Villeroy & Boch sanitaryware, with smart shower systems Midea inverter air conditioning in each unit Natural marble window sills and terrace ledges Security camera system Video intercom Garage and parking spaces available for purchase. Price includes VAT – First-time homebuyers are exempt from paying the property transfer tax! Don't miss the chance to live in a luxurious and spacious home in one of the most sought-after areas of Novi Sad. Apartments are legally registered 1/1 and free of encumbrances, eligible for mortgage financing. Ref. No.: 1030677 Call now: 0638822439 Moj Dom Real Estate, Novi Sad (Reg. no. 174) Русский: Продается шестикомнатная квартира в городской вилле на Телепе – готова к заселению В продаже две эксклюзивные квартиры площадью 136 м² и 143 м², расположенные в тихом и престижном районе Телепа, в городской вилле высокого качества строительства. Каждая квартира располагает террасами на крыше площадью 90 м², которые значительно расширяют жилое пространство, но не входят в официально зарегистрированную площадь. Характеристики и оснащение: Водяной теплый пол на газу – каждая квартира имеет собственный конденсационный газовый котел Bosch Алюминиевые порталы до 6 м², трехслойные стеклопакеты, электрические алюминиевые жалюзи, москитные сетки на всех окнах Премиальная керамика Mirage и Keratile (размеры плитки: 120×120 см и 60×60 см) Паркет из дуба в жилых комнатах Санитарная техника Hansgrohe и Villeroy & Boch, «умные» душевые системы Инверторный кондиционер Midea в каждой квартире Подоконники и облицовка террас из натурального мрамора Система видеонаблюдения Видеодомофон Есть возможность приобретения гаража и парковочного места. В стоимость включен НДС – покупатель первой квартиры освобождается от уплаты налога на передачу права собственности! Не упустите возможность жить в роскошной и просторной квартире в одном из самых востребованных районов Нови-Сада. Квартиры вписаны в реестр (1/1), без обременений, возможна ипотека. Код: 1030677 Звоните: 0638822439 Агентство недвижимости Moj Dom, Нови-Сад (Рег. № 174)

SLIČNE NEKRETNINE

Petrovaradin (Novi Sad) Petrovaradin

356,450 €

Petrovaradin, Stari Majur - Četvorosoban stan 121 m2 sa garažom …

  • Soba: 4.0
  • 2,946 €/m2
  • 121 m2

Novi Sad Salajka

342,390 €

Lux četvorosoban stan na Salajci-108m2…

  • Soba: 4.0
  • 3,170 €/m2
  • 108 m2

Novi Sad Bulevar Evrope

350,200 €

Na prodaju je izuzetan četvorosoban stan površine 115 m² - Bulevar Evrope…

  • Soba: 4.0
  • 3,045 €/m2
  • 115 m2

Novi Sad Centar

344,998 €

Odlična Lokacija , 4.0 -ban stan…

  • Soba: 4.0
  • 3,286 €/m2
  • 105 m2

Novi Sad Podbara

350,100 €

Novogradnja, Podbara, Novi Sad Agencija Moj Dom s ponosom predstavlja novogradnju renomiranog investitora u širem centru Novog Sada. Stambeni komple…

  • Soba: 4.0
  • 3,399 €/m2
  • 103 m2

Novi Sad Telep

360,000 €

Urbana vila, luksuzna oprema, garaža i parking u ceni! …

  • Soba: 4.0
  • 3,103 €/m2
  • 116 m2