Novi Sad - Grbavica

Na prodaju je ekskluzivan stan u savremenom stambenom objektu na Grbavici – jednoj od najpoželjnijih lokacija u Novom Sadu, poznatoj po odličnoj povezanosti, razvijenoj infrastrukturi i kvalitetnom urbanom životu. Objekat se ističe modernim arh

  • Broj prostorija: 3.5
  • Cena po m2: 3,502 €/m2
  • Površina: 77 m2
PRODAJA

269,650 €

Opis nekretnine

  • Šifra nekretnine : 1030821
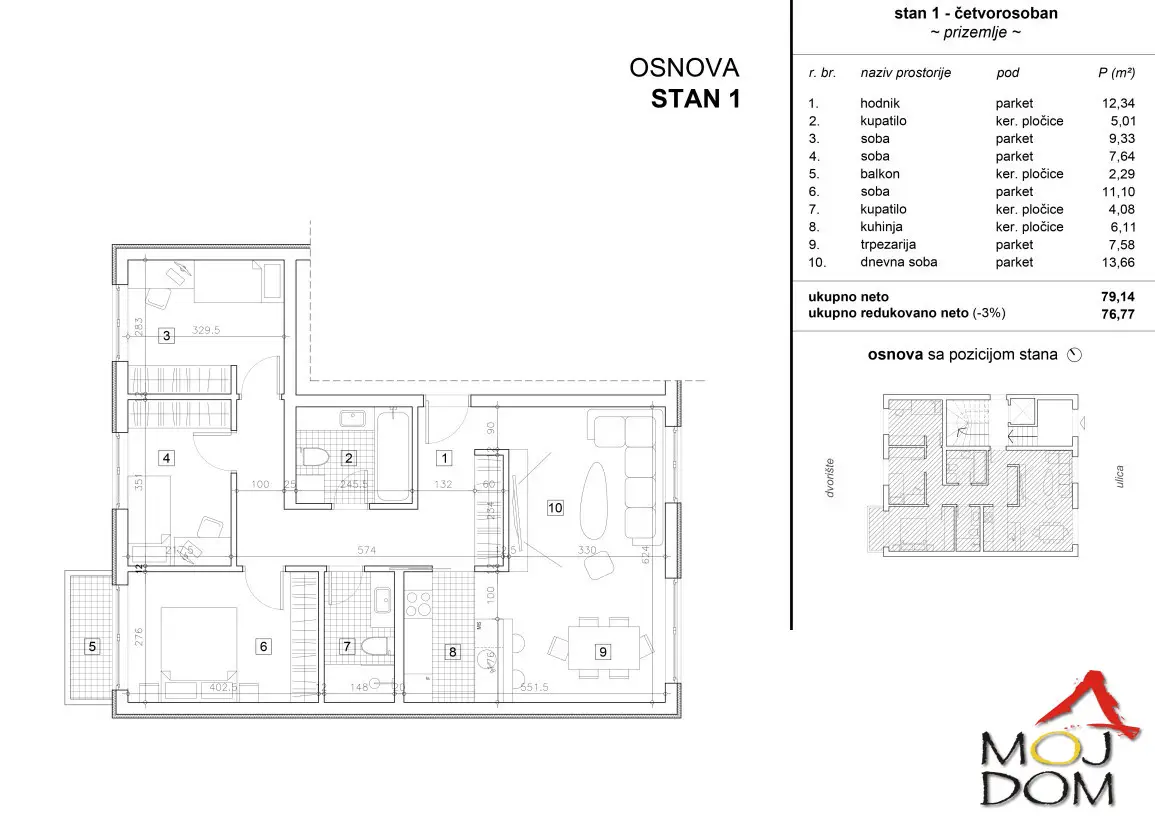
  • Površina : 77 m2
  • Cena : 269,650 €
  • Cena po m2 : 3501.95 €/m2
  • Grad : Novi Sad
  • Lokacija : Grbavica
  • Broj soba : 3.5
  • Sprat: 0/2

Na prodaju je ekskluzivan stan u savremenom stambenom objektu na Grbavici – jednoj od najpoželjnijih lokacija u Novom Sadu, poznatoj po odličnoj povezanosti, razvijenoj infrastrukturi i kvalitetnom urbanom životu. Objekat se ističe modernim arhitektonskim stilom i sadrži svega tri stambene jedinice, što garantuje mir, privatnost i osećaj ekskluzivnosti. Stan je smešten u zgradi izgrađenoj po najvišim građevinskim standardima, uz posebnu pažnju posvećenu svakom detalju – od funkcionalnog rasporeda prostorija do vrhunske završne obrade. Pametno iskorišćen prostor omogućava maksimalan komfor, dok savremena zvučna i toplotna izolacija obezbeđuju prijatan ambijent tokom cele godine. Dodatni benefit predstavlja lift koji vodi direktno do stanova, čime je stanovanje dodatno olakšano i prilagođeno savremenom načinu života. Kupci ostvaruju pravo na povrat PDV-a, što ovu nekretninu čini još atraktivnijom investicijom. Ako tražite nekretninu koja objedinjuje moderan dizajn, vrhunski kvalitet gradnje i prestižnu lokaciju, ova ponuda je pravi izbor za vas. Više informacija: Kontakt: 063/446-559 Šifra: 1030821 Agencija Moj Dom, Novi Sad – Reg. broj 174

SLIČNE NEKRETNINE

Novi Sad Podbara

265,100 €

Novogradnja, Podbara, Novi Sad Agencija Moj Dom s ponosom predstavlja novogradnju renomiranog investitora u širem centru Novog Sada. Stambeni komple…

  • Soba: 4.0
  • 3,399 €/m2
  • 78 m2

Petrovaradin (Novi Sad) Alibegovac

278,100 €

Penthouse stan sa krovnom terasom i bazenom - RETKO U PONUDI! …

  • Soba: 4.0
  • 2,781 €/m2
  • 100 m2

Novi Sad Centar

274,000 €

Novi Sad, Futoška -stan je na 3. spratu , dve etaže, 95 + 45, „open space“ u donjem delu mala soba 10m2, dnev…

  • Soba: 4.0
  • 2,141 €/m2
  • 128 m2

Novi Sad Somborski bulevar

278,100 €

Novogradnja na Telepu, Novi Sad Agencija Moj Dom prodaje nesvakidašnji četvorosoban stan u najlepšem delu Telepa. Stan je poršine 115m2, ima 3 sp…

  • Soba: 4.0
  • 2,418 €/m2
  • 115 m2

Novi Sad Grbavica

269,640 €

Novi Sad, Grbavica - Luksuzan vid stanovanja na lepoj i urbanoj lokaciji …

  • Soba: 3.5
  • 3,502 €/m2
  • 77 m2

Petrovaradin (Novi Sad) Alibegovac

278,100 €

Penthouse, novogradnja, odmah useljivo - *povrat PDV-a* ID#10330…

  • Soba: 4.0
  • 2,781 €/m2
  • 100 m2