Novi Sad - Grbavica

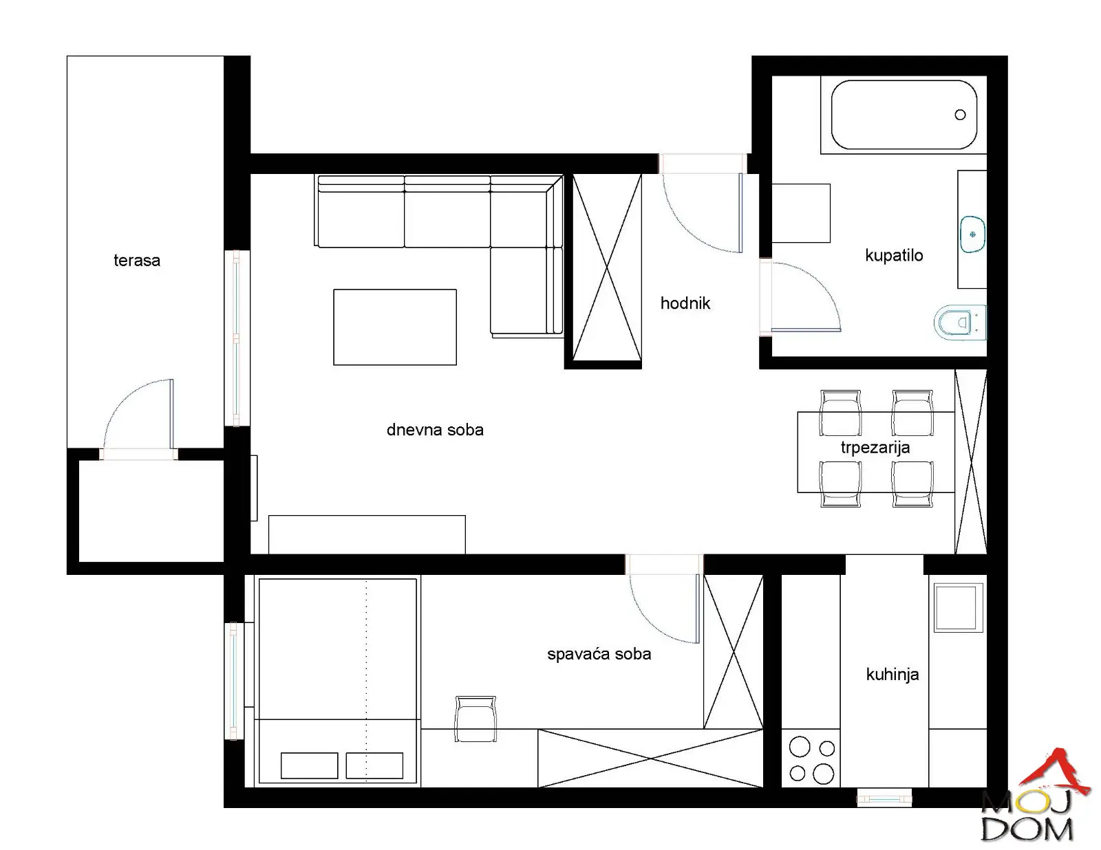
Na Grbavici, u mirnoj i tihoj ulici, nalazi se prelep i komforan dvosoban stan od 50m², kompletno renoviran i spreman da postane vaš novi dom. Iako terasa od 6,4m² i ostava od 1m² nisu uračunate u kvadraturu, pružaju dodatnu vrednost i funkcion

  • Broj prostorija: 2.0
  • Cena po m2: 2,720 €/m2
  • Površina: 50 m2
PRODAJA

136,000 €

Opis nekretnine

  • Šifra nekretnine : 1030603
  • Površina : 50 m2
  • Cena : 136,000 €
  • Cena po m2 : 2720.00 €/m2
  • Grad : Novi Sad
  • Lokacija : Grbavica
  • Broj soba : 2.0
  • Sprat: 3/4

Na Grbavici, u mirnoj i tihoj ulici, nalazi se prelep i komforan dvosoban stan od 50m², kompletno renoviran i spreman da postane vaš novi dom. Iako terasa od 6,4m² i ostava od 1m² nisu uračunate u kvadraturu, pružaju dodatnu vrednost i funkcionalnost prostoru. Stan se nalazi na trećem spratu zgrade sa četiri sprata, bez lifta, a dekorativne kosine koje se vide na fotografijama daju mu poseban šarm i toplinu. Orijentisan je ka dvorištu, što obezbeđuje mir i prijatnu atmosferu, dok ga obilje prirodne svetlosti čini još privlačnijim. U cenu su uključeni moderna kuhinja bez električnih uređaja, ugradni plakari, TV komoda, ugaona garnitura, komarnici, bračni krevet bez dušeka, kao i plakari u kupatilu, dok je ostatak opreme predmet dogovora. Stan ima i dodatnu pogodnost — mogućnost preuzimanja zakupa parking mesta koje vlasnici trenutno koriste, što je idealno rešenje za one kojima je potrebna sigurnost i komfor prilikom parkiranja. Kontakt: 021/523-193, 021/451-318 Šifra oglasa: 1030603 Moj Dom nekretnine, Novi Sad, Reg. br. 174 In the peaceful neighborhood of Grbavica, we offer a beautiful two-bedroom apartment with 50m² of registered space, fully renovated and ready to move in. The apartment also features a 6.4m² terrace and a 1m² storage room, which are not included in the total area, adding extra comfort and functionality. Situated on the third floor of a four-story building without an elevator, it boasts charming decorative slants that create a warm and unique interior design. With its courtyard orientation, the apartment ensures a quiet atmosphere, plenty of natural light, and a friendly neighborhood environment. The price includes a modern kitchen without electrical appliances, built-in wardrobes, a TV cabinet, a corner sofa, mosquito nets, a double bed frame without a mattress, and bathroom cabinets, while other furniture can be negotiated. Additionally, there is the possibility of continuing the rental of a parking space that the current owners use, which is a rare advantage in this part of the city. Contact: +381 21 523 193, +381 21 451 318 Listing ID: 1030603 Moj Dom Real Estate, Novi Sad, Reg. no. 174 В тихом районе Грбавица предлагается прекрасная двухкомнатная квартира площадью 50м², полностью отремонтированная и готовая к заселению. Дополнительный комфорт обеспечивают терраса площадью 6,4м² и кладовая 1м², которые не входят в общую площадь квартиры. Жильё расположено на третьем этаже четырёхэтажного дома без лифта, а декоративные скосы придают интерьеру особое очарование и уют. Благодаря ориентации во двор, квартира остаётся светлой, спокойной и защищённой от уличного шума. В стоимость входят современная кухня без бытовой техники, встроенные шкафы, ТВ-комод, угловой диван, москитные сетки, каркас двуспальной кровати без матраса и шкафчики в ванной, а остальная мебель оговаривается дополнительно. Квартира также имеет преимущество — возможность продолжить аренду парковочного места, которым сейчас пользуются владельцы, что является редкостью в этом районе города. Контакт: +381 21 523 193, +381 21 451 318 Код объявления: 1030603 Moj Dom недвижимость, Нови-Сад, Рег. №174

SLIČNE NEKRETNINE

Novi Sad Grbavica

138,000 €

Grbavica , odlična ponuda ID#10898…

  • Soba: 2.0
  • 3,000 €/m2
  • 46 m2

Novi Sad Adice

144,600 €

NOVI SAD.ADICE.TROIPOSOBAN STAN.PLUS PDV (Svet nekretnine, Novi Sad, Reg. br. 405)…

  • Soba: 3.5
  • 2,008 €/m2
  • 72 m2

Novi Sad Grbavica

144,420 €

Novi Sad, Grbavica - Luksuzan vid stanovanja na lepoj i urbanoj lokaciji …

  • Soba: 1.5
  • 3,703 €/m2
  • 39 m2

Novi Sad Liman 3

143,170 €

Liman 3, dvosoban stan, 52m2! …

  • Soba: 2.0
  • 2,753 €/m2
  • 52 m2

Novi Sad Adice

144,600 €

NOVI SAD.ADICE.TROIPOSOBAN STAN.PLUS PDV (Svet nekretnine, Novi Sad, Reg. br. 405)…

  • Soba: 3.5
  • 2,008 €/m2
  • 72 m2

Novi Sad Centar

133,900 €

Prodaje se predivan stan u samom centru grada. Odličan je za život ali i za izdavanje na mesečnom a i na dnevnom nivou. Nalazi se na drugom spratu …

  • Soba: 1.5
  • 3,719 €/m2
  • 36 m2