Petrovaradin (Novi Sad) - Alibegovac

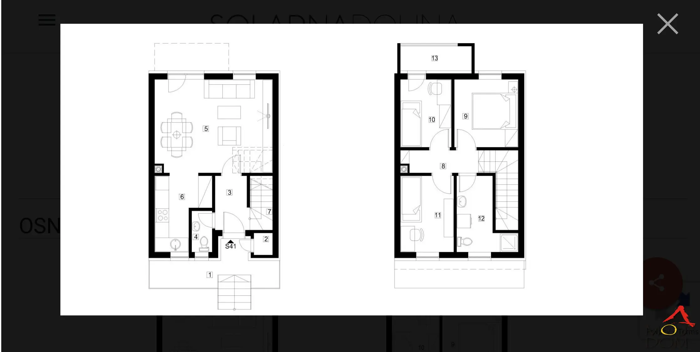
Prodaje se stan/tipska kuća u Petrovaradinu, naselje Solarna dolina. Kuća ima 73m2 stambenog prostora i ukupno 33m2 terase sa prednje i zadnje strane kuće. Na prizemlju kuće se nalazi dnevna soba sa trpezarijom i kuhinjom, ostavni prostor ispod s

  • Broj prostorija: 4.0
  • Cena po m2: 1,698 €/m2
  • Površina: 106 m2
PRODAJA

180,000 €

Opis nekretnine

  • Šifra nekretnine : 1031449
  • Površina : 106 m2
  • Cena : 180,000 €
  • Cena po m2 : 1698.11 €/m2
  • Grad : Petrovaradin (Novi Sad)
  • Lokacija : Alibegovac
  • Broj soba : 4.0
  • Sprat: 0/1

Prodaje se stan/tipska kuća u Petrovaradinu, naselje Solarna dolina. Kuća ima 73m2 stambenog prostora i ukupno 33m2 terase sa prednje i zadnje strane kuće. Na prizemlju kuće se nalazi dnevna soba sa trpezarijom i kuhinjom, ostavni prostor ispod stepeništa, ulazni hodnik i toalet, a na spratu tri spavaće sobe, terasa i kupatilo. Prodaje se polunameštena, kuhinja urađena po meri, dnevna soba sa velikim ugradnim kliznim ormarom i trpezarijom, glavna spavaća soba i kupatilo. Grejanje i hlađenje je podno, plus fan coil uređaji, na toplotnu pumpu. Naselje se nalazi na pet minuta od grada. U okviru naselja ima dečije igralište i prodavnica. Prvi vlasnik, uknjižena kuća Može na stambeni kredit! Šifra: 1031587 Kontakt: 062548930 (Moj Dom nekretnine, Novi Sad, Reg. br. 174) For sale: apartment / terraced house in Petrovaradin, Solarna Dolina neighborhood. The house has 73 m² of living space and a total of 33 m² of terraces at the front and back of the house. The ground floor consists of a living room with dining area and kitchen, storage space under the staircase, entrance hallway, and a toilet. On the upper floor there are three bedrooms, a terrace, and a bathroom. The property is sold partially furnished. The kitchen is custom-made, the living room features a large built-in sliding wardrobe and dining area, while the master bedroom and bathroom are fully equipped. Underfloor heating and cooling with additional fan coil units, powered by a heat pump. The neighborhood is located only five minutes from the city. Within the complex there is a children’s playground and a grocery store. First owner, legally registered property. Purchase with a housing loan is possible. Code: 1031587 Contact: +381 62 548 930 (Moj Dom Nekretnine, Novi Sad, Reg. No. 174) Продается квартира / таунхаус в Петроварадине, район Соларна Долина. Общая жилая площадь составляет 73 м², а общая площадь террас — 33 м² (спереди и сзади дома). На первом этаже расположены гостиная с обеденной зоной и кухней, кладовое помещение под лестницей, прихожая и туалет. На втором этаже находятся три спальни, терраса и ванная комната. Дом продается частично меблированным. Кухня выполнена на заказ, в гостиной установлен большой встроенный шкаф-купе и обеденная зона, полностью оборудованы главная спальня и ванная комната. Тёплые полы для отопления и охлаждения, дополнительно установлены fan coil системы, работающие от теплового насоса. Поселок расположен в пяти минутах от города. На территории комплекса есть детская площадка и магазин. Первый владелец, объект зарегистрирован. Возможна покупка в ипотеку. Код: 1031587 Контакт: +381 62 548 930 (Moj Dom Nekretnine, Нови-Сад, рег. № 174)

SLIČNE NEKRETNINE

Novi Sad Bulevar Oslobođenja

170,980 €

Prodajemo trosoban renoviran stan na Bulevaru Oslobođenja ID#11628…

  • Soba: 3.0
  • 2,672 €/m2
  • 64 m2

Sremska Kamenica Institut

183,200 €

Sremska Kamenica-DvoEtažni Četvorosoban stan 83 m2 sa Terasom od 42 m2-povraćaj PDV-a-065/385 8880…

  • Soba: 4.0
  • 2,207 €/m2
  • 83 m2

Novi Sad Bulevar

187,500 €

Novi Sad, Bulevar Oslobodjenja u blizini Futoske pijace na odlicnoj lokaciji povezanoj sa svim delovima grada, prodaj…

  • Soba: 2.5
  • 2,568 €/m2
  • 73 m2

Novi Sad Somborski bulevar

184,500 €

Na prodaju je moderan, izuzetno prijatan dvoiposoban stan od 59 m² na Telepu, na jednoj od najtraženijih lokacija u Novom Sadu – Bulevaru patrijar…

  • Soba: 2.5
  • 3,127 €/m2
  • 59 m2

Sremska Kamenica Tatarsko brdo

183,160 €

Sremska Kamenica - Stanovi za kupce koji žele dobru povezanost sa gradom, a mirno životno okruženje …

  • Soba: 4.0
  • 2,207 €/m2
  • 83 m2

Novi Sad Telep

172,150 €

Na prodaju – stan u izgradnji, Telep, Novi Sad – Kvalitetna gradnja u blizini Limana i šetališta U ponudi je stan u izgradnji na atraktivnoj lo…

  • Soba: 3.0
  • 2,459 €/m2
  • 70 m2