Sremska Kamenica - Popovica

Prodajemo ogroman porodični stan sa garažom za 2 auta, parking mestom ispred, tri terase, od kojih jedna ima predivan pogled na Dunav i Štrand sa druge strane. Stan se nalazi u kompleksu Pop Hill i sastoji se od predivnog ''open space''

  • Broj prostorija: 3.5
  • Cena po m2: 2,497 €/m2
  • Površina: 165 m2
PRODAJA

412,000 €

Opis nekretnine

  • Šifra nekretnine : 1030844
  • Površina : 165 m2
  • Cena : 412,000 €
  • Cena po m2 : 2496.97 €/m2
  • Grad : Sremska Kamenica
  • Lokacija : Popovica
  • Broj soba : 3.5
  • Sprat: 2/2

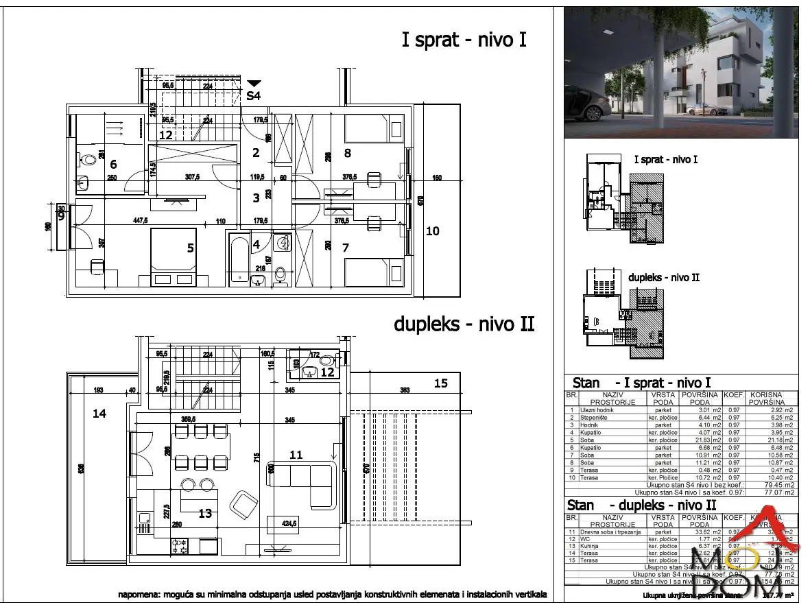
Srpski: Prodajemo ogroman porodični stan sa garažom za 2 auta, parking mestom ispred, tri terase, od kojih jedna ima predivan pogled na Dunav i Štrand sa druge strane. Stan se nalazi u kompleksu Pop Hill i sastoji se od predivnog ''open space'' dnevnog boravka sa kuhinjom i trpezarijom, iz kog na jednu stranu imate veliki portal na terasu prema Dunavu, a sa druge izlaz na zatvorenu zimsku terasu, toalet u gornjoj etaži sa dnevnim boravkom, tri spavaće sobe u donjoj etaži, od kojih dve dečije imaju svoje izlaze na treću terasu, ''master'' spavaća soba ima svoje zasebno kupatilo i američki plakar od 5-6m², a tu je naravno i još jedno kupatilo iz hodnika. Ovaj luksuzni stan prodaje se kompletno opremljen, a sav nameštaj i tehnika je visokog kvaliteta i cenovnog ranga, sve rađeno po meri od kvalitetnih materijala, spušteni plafoni, specijalna rasveta, zvezdano nebo u dečijim sobama, svi zidovi i plafoni pokriveni zaštitnom oblogom, koja doprinosi estetskom izgledu, ali i higijeni ovog stana. U cenu stana uračunata je i uknjižena garaža od 30m², u koju staju dva automobila, a ispred koje je moguće parkirati još jedan. Stan je uknjižen 1/1 i bez tereta, moguće kreditiranje. Šifra: 1030844 Pozovite!!! 0638822439 Agencija Moj Dom, reg. broj 174 English: We are selling a spacious family apartment with a double garage, an additional parking space in front, and three terraces—one of which offers a stunning view of the Danube and the Štrand beach on the opposite side. Located in the Pop Hill residential complex, the apartment features a beautiful open-space living room with a kitchen and dining area. On one side, there's a large glass portal leading to the terrace overlooking the Danube, while on the other side there's access to an enclosed winter terrace. The upper floor also includes a guest toilet next to the living area. The lower level consists of three bedrooms: two children's rooms with access to a third terrace, and a master bedroom with its own bathroom and a 5–6 m² walk-in closet. There's also an additional bathroom accessed from the hallway. This luxurious apartment is being sold fully furnished. All furniture and appliances are of high quality and price range, custom-made from premium materials. The property boasts lowered ceilings, designer lighting, starry-sky effect in the children's rooms, and protective wall and ceiling coverings that enhance both aesthetics and hygiene. The price includes a registered 30 m² garage that fits two cars, with an additional parking space in front. The apartment is fully registered 1/1 and free of encumbrances. Mortgage financing is possible. Code: 1030844 Call us!!! 0638822439 Moj Dom Real Estate Agency, Reg. No. 174 Русский: Продаётся просторная семейная квартира с гаражом на два автомобиля, парковочным местом перед ним и тремя террасами, одна из которых предлагает потрясающий вид на Дунай и пляж Штранд. Квартира расположена в жилом комплексе Pop Hill и состоит из великолепной гостиной открытого плана с кухней и столовой. С одной стороны — выход через большой стеклянный портал на террасу с видом на Дунай, с другой — выход на закрытую зимнюю террасу. На верхнем этаже также находится туалет для гостей рядом с гостиной. На нижнем уровне расположены три спальни: две детские комнаты имеют выход на третью террасу, а "мастер"-спальня — собственную ванную комнату и гардеробную площадью 5–6 м². Также есть ещё одна ванная комната, доступная из коридора. Эта роскошная квартира продаётся полностью меблированной. Вся мебель и техника — высокого качества и ценового сегмента, изготовлены на заказ из качественных материалов. В квартире — подвесные потолки, дизайнерское освещение, "звёздное небо" в детских комнатах, все стены и потолки покрыты специальной защитной облицовкой, которая улучшает как внешний вид, так и гигиену жилья. В цену входит зарегистрированный гараж площадью 30 м², рассчитанный на два автомобиля, а перед ним возможно припарковать ещё один. Квартира зарегистрирована 1/1, без обременений, возможна ипотека. Код: 1030844 Звоните!!! 0638822439 Агентство недвижимости Moj Dom, рег. номер 174

SLIČNE NEKRETNINE

Novi Sad Cara Dušana

418,900 €

Luksuzan petosoban smart stan na prestižnoj lokaciji – Cara Dušana, Novi Sad Na jednoj od najtraženijih adresa u Novom Sadu, u elitnoj ulici Cara…

  • Soba: 5.0
  • 3,406 €/m2
  • 123 m2

Novi Sad Adamovićevo naselje

418,920 €

Na prodaju – Ekskluzivan petosoban stan u mirnom delu grada | 123,25 m² | Cena: 418.920 €…

  • Soba: 5.0
  • 3,406 €/m2
  • 123 m2

Novi Sad Socijalno

403,900 €

NOVI SAD.SOCIJALNO.PETOSOBAN STAN.PLUS PDV(Svet nekretnine, Novi Sad, Reg. br. 405)…

  • Soba: 5.0
  • 3,311 €/m2
  • 122 m2

Sremska Kamenica Popovica

412,000 €

Prodajemo ogroman porodični stan sa garažom za 2 auta, parking mestom ispred, tri terase, od kojih jedna ima predivan pogled na Dunav i Štrand sa…

  • Soba: 3.5
  • 2,497 €/m2
  • 165 m2

Novi Sad Centar

403,700 €

U srcu Novog Sada, samo par koraka od šarmantnog keja u Starom gradu, nalazi se ovaj potpuno renovirani salonski stan koji odiše elegancijom i moder…

  • Soba: 4.0
  • 3,604 €/m2
  • 112 m2

Novi Sad Telep

406,850 €

Severni Telep-Ekskluzivan Veliki Petosoban stan 140 m2 savremeni dom sa visokim standardima sa PM-065/385 8880…

  • Soba: 5.0
  • 2,906 €/m2
  • 140 m2