Novi Sad - Detelinara

Evropski bulevar-*Naša Preporuka*-Fantastičan Trosoban Dupleks 74 m2-povrat Pdv-065/385 8880

  • Broj prostorija: 3.0
  • Cena po m2: 2,113 €/m2
  • Površina: 74 m2
PRODAJA

156,350 €

Opis nekretnine

  • Šifra nekretnine : 20926
  • Površina : 74 m2
  • Cena : 156,350 €
  • Cena po m2 : 2112.84 €/m2
  • Grad : Novi Sad
  • Lokacija : Detelinara
  • Broj soba : 3.0
  • Sprat: 5/5

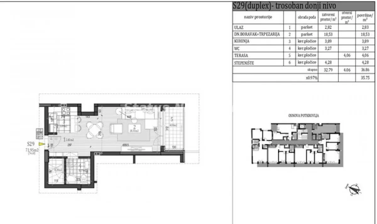
*STAN BEZ KOMŠIJA SA SPRATA*- Evropski bulevar-Fantastičan Trosoban Dupleks 74 m2 sa Lepom Terasom-065/385 8880... Prodajemo na Bulevaru Evrope Izuzetan Trosoban stan 74 m2 u Novogradnji na TOP-TOP LOKACIJI...Stan se nalazi na Petom spratu zgrade,svetao je i funkcionalan,dvorišno je orijentisan sa lepim Pogledom...ističe se kvalitetna ugradnja,Italijanska keramika,Pvc stolarija...Grejanje je Centralno...Mogućnost Kupovine preko Stambenog Kredita i Povrata PDV-a...useljenje Jun 2025...Posebno izdvajamo blizinu škole,vrtića,Sajma,Parka i Gradskog prevoza... OBAVEZNO POGLEDAJTE... više informacija na www.status-nekretnine.com A57-20926 (STATUS NEKRETNINE D.O.O UPISAN U REG. POSREDNIKA POD BR.182) ili na tel. 065/385 8880...Mišo Licenca broj 2465

SLIČNE NEKRETNINE

Novi Sad Bulevar patrijarha Pavla

151,900 €

NOVI SAD.BUL,PATRIJARHA PAVLA.TROSOBAN STAN.SA PDV-OM(Svet nekretnine, Novi Sad, Reg. br. 405)…

  • Soba: 3.0
  • 2,575 €/m2
  • 59 m2

Novi Sad Telep

148,320 €

Novi Sad, Telep - Odlični stanovi u izgradnji - dvoiposoban, 60 m2 …

  • Soba: 3.0
  • 2,472 €/m2
  • 60 m2

Petrovaradin (Novi Sad) Stari Majur

150,380 €

Novi Sad, Petrovaradin - Trosoban stan 79m2 …

  • Soba: 2.5
  • 1,904 €/m2
  • 79 m2

Novi Sad Grbavica

161,710 €

Dvosoban Grbavica ID#7236…

  • Soba: 2.0
  • 2,995 €/m2
  • 54 m2

Novi Sad Telep

156,100 €

Severni Telep-Konforan Trosoban stan 59 m2 u Izgradnji na Top Lokaciji-povrat PDV-065/385 8880…

  • Soba: 3.0
  • 2,646 €/m2
  • 59 m2

Novi Sad Detelinara

156,300 €

Prostran dvosoban stan, 62m², dvostrano orijentisan – Nova Detelinara, Novi Sad Na prodaju komforan dvosoban stan od 62m², dvostrano orijentisan,…

  • Soba: 2.0
  • 2,521 €/m2
  • 62 m2