Novi Sad - Telep

Telep-Odličan Trosoban stan 57 m2 sa Terasom u Izgradnji-povrat PDV-065/385 8880

  • Broj prostorija: 3.0
  • Cena po m2: 2,439 €/m2
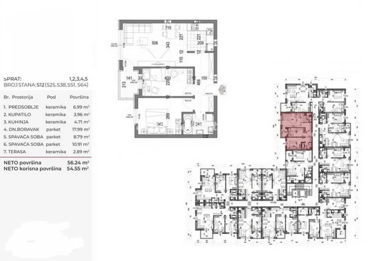
  • Površina: 57 m2
PRODAJA

139,000 €

Opis nekretnine

  • Šifra nekretnine : 21252
  • Površina : 57 m2
  • Cena : 139,000 €
  • Cena po m2 : 2438.60 €/m2
  • Grad : Novi Sad
  • Lokacija : Telep
  • Broj soba : 3.0
  • Sprat: 5/5

*DIREKTNA PRODAJA*...Prodajemo u Atraktivnom delu Telepa Fantastičan Trosoban stan 57 m2 na TOP LOKACIJI...Stan se nalazi u kvalitetno građenoj zgradi na petom spratu,dvorišne orijentacije,svetao je i funkcionalan, pogodan je za udoban život građana ima lepu Terasu...Ističemo kvalitetnu ugradnju,hrastovi parketi,italijanske pločice,Pvc stolarija,sigurnosna vrata...grejanje je Centralno....Mogućnost kupovine preko Stambenog Kredita...Useljenje Decembar 2026...ima povrat PDV-a...Posebno izdvajamo blizinu škole,vrtića,Bulevara Patrijarha Pavla,Tržnog centra *Lidl* i Gradskog prevoza...OBAVEZNO POGLEDAJTE... više informacija na www.status-nekretnine.com A57-21252 (STATUS NEKRETNINE D.O.O UPISAN U REGISTAR POSREDNIKA POD BR.182) ili na tel. 065/385 8880...Mišo Licenca broj 2465

SLIČNE NEKRETNINE

Novi Sad Telep

143,720 €

Južni Telep-Dvosoban stan 52 m2 u blizini Bulevara Patrijarha Pavla na Pogodnoj Lokaciji-065/385 8880…

  • Soba: 2.0
  • 2,764 €/m2
  • 52 m2

Novi Sad Detelinara

147,290 €

Novi Sad, Nova Detelinara - Kompletno renoviran dvoiposoban stan, 58 m2 …

  • Soba: 2.5
  • 2,539 €/m2
  • 58 m2

Novi Sad Bulevar Evrope

148,900 €

NOVI SAD.BULEVAR EVROPE.DVOSOBAN STAN.PLUS PDV(Svet nekretnine, Novi Sad, Reg. br. 405)…

  • Soba: 2.0
  • 3,237 €/m2
  • 46 m2

Novi Sad Telep

145,700 €

NoviSad, telep, nov brzo useljiv trosoban stan odličnog rasporeda . Cena 145700 sa Pdv-om(Bomil nekretnine, Novi Sad, R…

  • Soba: 3.0
  • 2,512 €/m2
  • 58 m2

Novi Sad Sajmište

133,700 €

NOVI SAD.SAJAM .DVOSOBAN STAN.PLUS PDV(Svet nekretnine, Novi Sad, Reg. br. 405)…

  • Soba: 2.0
  • 3,039 €/m2
  • 44 m2

Novi Sad Telep

132,800 €

PRODAJA STANA U NOVOGRADNJI- UZ DOPLATU ZA GARAŽNO MESTO 18m2-TELEP ID#11696…

  • Soba: 2.0
  • 3,239 €/m2
  • 41 m2