Novi Sad - Telep

Telep-Lep Dvosoban stan 39 m2 sa Terasom u Izgradnji-povrat PDV-065/385 8880

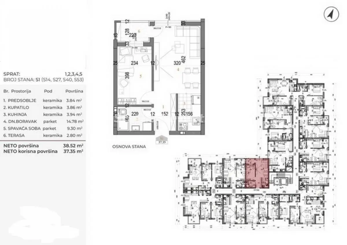
  • Broj prostorija: 2.0
  • Cena po m2: 2,781 €/m2
  • Površina: 39 m2
PRODAJA

108,460 €

Opis nekretnine

  • Šifra nekretnine : 21253
  • Površina : 39 m2
  • Cena : 108,460 €
  • Cena po m2 : 2781.03 €/m2
  • Grad : Novi Sad
  • Lokacija : Telep
  • Broj soba : 2.0
  • Sprat: 5/5

*DIREKTNA PRODAJA*...Prodajemo u Atraktivnom delu Telepa Fantastičan Dvosoban stan 39 m2 na TOP LOKACIJI...Stan se nalazi u kvalitetno građenoj zgradi na Trećem spratu,ulične orijentacije,svetao je i funkcionalan, pogodan je za udoban život građana ima lepu Terasu...Ističemo kvalitetnu ugradnju,hrastovi parketi,italijanske pločice,Pvc stolarija,sigurnosna vrata...grejanje je Centralno....Mogućnost kupovine preko Stambenog Kredita...Useljenje Decembar 2026...ima povrat PDV-a...Posebno izdvajamo blizinu škole,vrtića,Bulevara Patrijarha Pavla,Tržnog centra *Lidl* i Gradskog prevoza...OBAVEZNO POGLEDAJTE... više informacija na www.status-nekretnine.com A57-21253 (STATUS NEKRETNINE D.O.O UPISAN U REGISTAR POSREDNIKA POD BR.182) ili na tel. 065/385 8880...Mišo Licenca broj 2465

SLIČNE NEKRETNINE

Novi Sad Telep

99,000 €

Dvosoban stan na Telepu, Novi Sad Agencija Moj Dom prodaje dvosoban stan na Telepu u Novom Sadu. Stan je površine 64m2, i nalazi se u potkrovlju sta…

  • Soba: 2.0
  • 1,547 €/m2
  • 64 m2

Novi Sad Adice

99,000 €

NOVI SAD. ADICE. DVOSOBAN STAN. PLUS PDV(Svet nekretnine, Novi Sad, Reg. br. 405)…

  • Soba: 2.0
  • 2,063 €/m2
  • 48 m2

Novi Sad Novo Naselje

114,000 €

Novo naselje, fenomenalan nov, neuseljavan dvosoban stan-izuzetna ponuda…

  • Soba: 2.0
  • 2,780 €/m2
  • 41 m2

Novi Sad Bulevar patrijarha Pavla

111,900 €

NOVI SAD.BUL.PATRIJARHA PAVLA.DVOSOBAN STAN.SA PDV-OM(Svet nekretnine, Novi Sad, Reg. br. 405)…

  • Soba: 2.0
  • 2,729 €/m2
  • 41 m2

Novi Sad Kamenjar

99,700 €

Urbana vila, odlična lokacija, 45m2, obezbeđen parking …

  • Soba: 2.0
  • 2,216 €/m2
  • 45 m2

Novi Sad Bulevar patrijarha Pavla

109,200 €

NOVI SAD.BUL,PATRIJARHA PAVLA.DVOSOBAN STAN.SA PDV-OM (Svet nekretnine, Novi Sad, Reg. br. 405)…

  • Soba: 2.0
  • 2,730 €/m2
  • 40 m2