Novi Sad - Futog

Futog-Lep Dvosoban stan 42 m2 u Izgradnji--065/385 8880

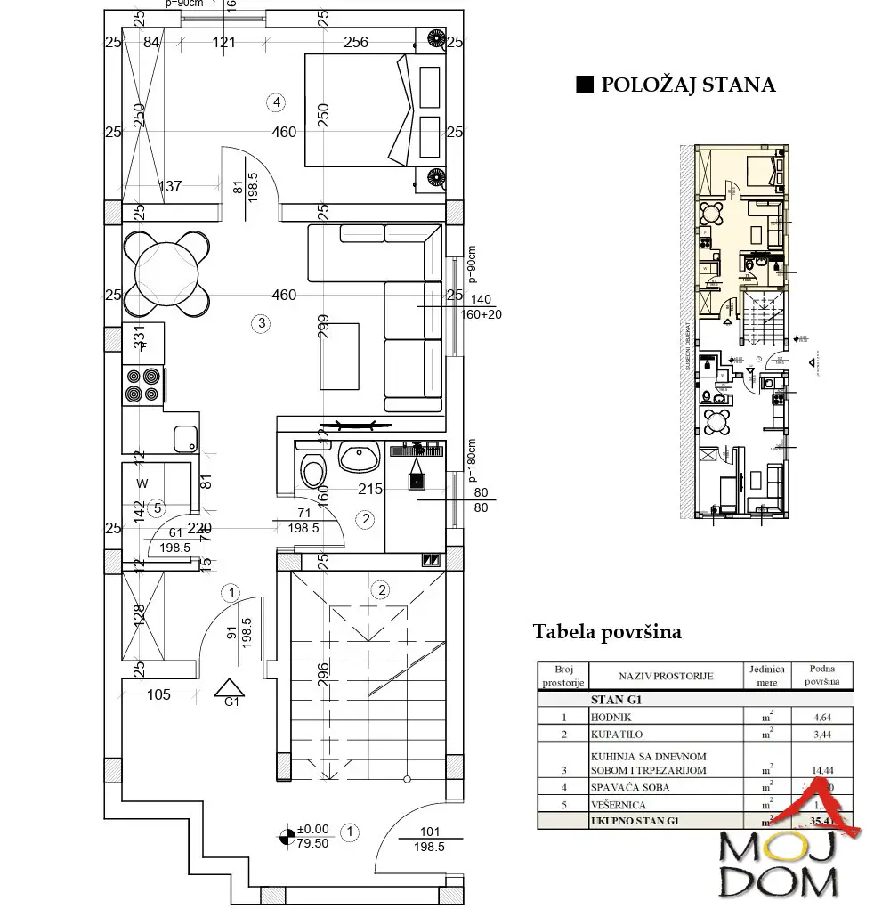
  • Broj prostorija: 2.0
  • Cena po m2: 1,557 €/m2
  • Površina: 42 m2
PRODAJA

65,400 €

Opis nekretnine

  • Šifra nekretnine : 22107
  • Površina : 42 m2
  • Cena : 65,400 €
  • Cena po m2 : 1557.14 €/m2
  • Grad : Novi Sad
  • Lokacija : Futog
  • Broj soba : 2.0
  • Sprat: pr/2

*Naša Preporuka*-Prodajemo u NajLepšem delu Futoga Dvosoban stan 42 m2 u Izgradnji na TOP-TOP LOKACIJI.... Stan se vodi papirološki kao Garaža nalazi se u kvalitetno građenoj zgradi u Prizemlju ,ulične orijentacije Ističemo kvalitetnu ugradnju,hrastovi parketi,italijanske pločice,pvc stolarija,sigurnosna vrata,...grejanje je centralno na Gas... stan je u visokoj kategoriji energetske efikasnosti...useljenje Decembar 2026... mogućnost kupovine Parking Mesta...Kupovina je za Gotovinu... Posebno izdvajamo blizinu Osnovne škole,vrtića,Dunavskog Šetališta i Gradskog autobusa... više informacija na tel. 065/385 8880...Mišo Licenca broj 2465 ili na www.status-nekretnine.com A57-22107 (STATUS NEKRETNINE D.O.O UPISAN U REGISTAR POSREDNIKA POD BR.182)

SLIČNE NEKRETNINE

Novi Sad Adice

60,800 €

Nov, funkcionalan stan sa odvojenom spavaćom sobom + parking mesto …

  • Soba: 1.0
  • 2,338 €/m2
  • 26 m2

26m2 - Ekskluzivni kompleks urbanih

58,000 €

26m2 - Ekskluzivni kompleks urbanih vila | Veternička rampa, Novi Sad…

  • Soba: 0.5
  • 2,231 €/m2
  • 26 m2

Novi Sad Telep

67,000 €

Noviji stan bez ulaganja u prizemlju novije zgrade. Stan je uknjižen kao garaža. Sastoji se od dnevnog boravka sa k…

  • Soba: 1.5
  • 1,811 €/m2
  • 37 m2

Zrenjanin Zrenjanin

68,000 €

Zrenjanin-Extra lux sređen stan…

  • Soba: 3.0
  • 1,015 €/m2
  • 67 m2

Novi Sad Satelit

72,160 €

Prodaje se potpuno nameštena, renovirana garsonjera na Satelitu. Godina izgradnje 1995. Stan gleda na livadu i ima cent…

  • Soba: 0.5
  • 2,886 €/m2
  • 25 m2

Novi Sad Adice

66,950 €

Prodajemo nove, odmah useljive stanove sa izdvojenom spavaćom sobom na Adicama. U pitanju su prizemne jedinice koje su uknjižene kao garaže, pa je…

  • Soba: 1.5
  • 1,762 €/m2
  • 38 m2